Residential4734 N Saker Cir
At a Glance
- Bathrooms: 2
- Bedrooms: 3
- Half baths: 0
- Year built: 2025
- Area: 1546 sq ft
- MLS ID: SCK661383
- Subdivision: FALCON FALLS
- Garage Spaces: 3
Description
-
Description:
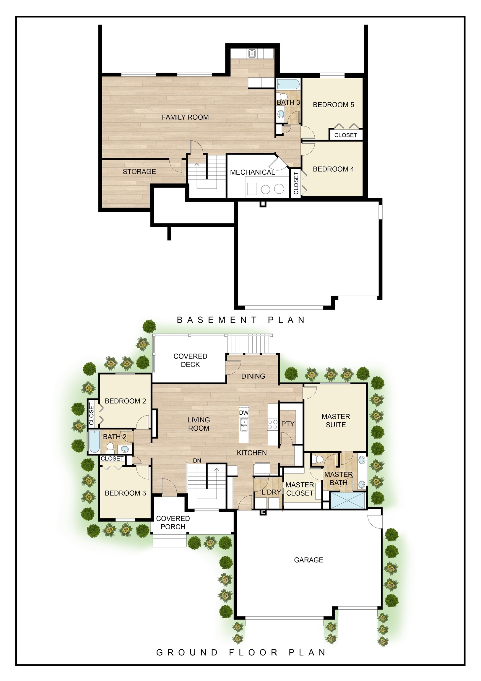
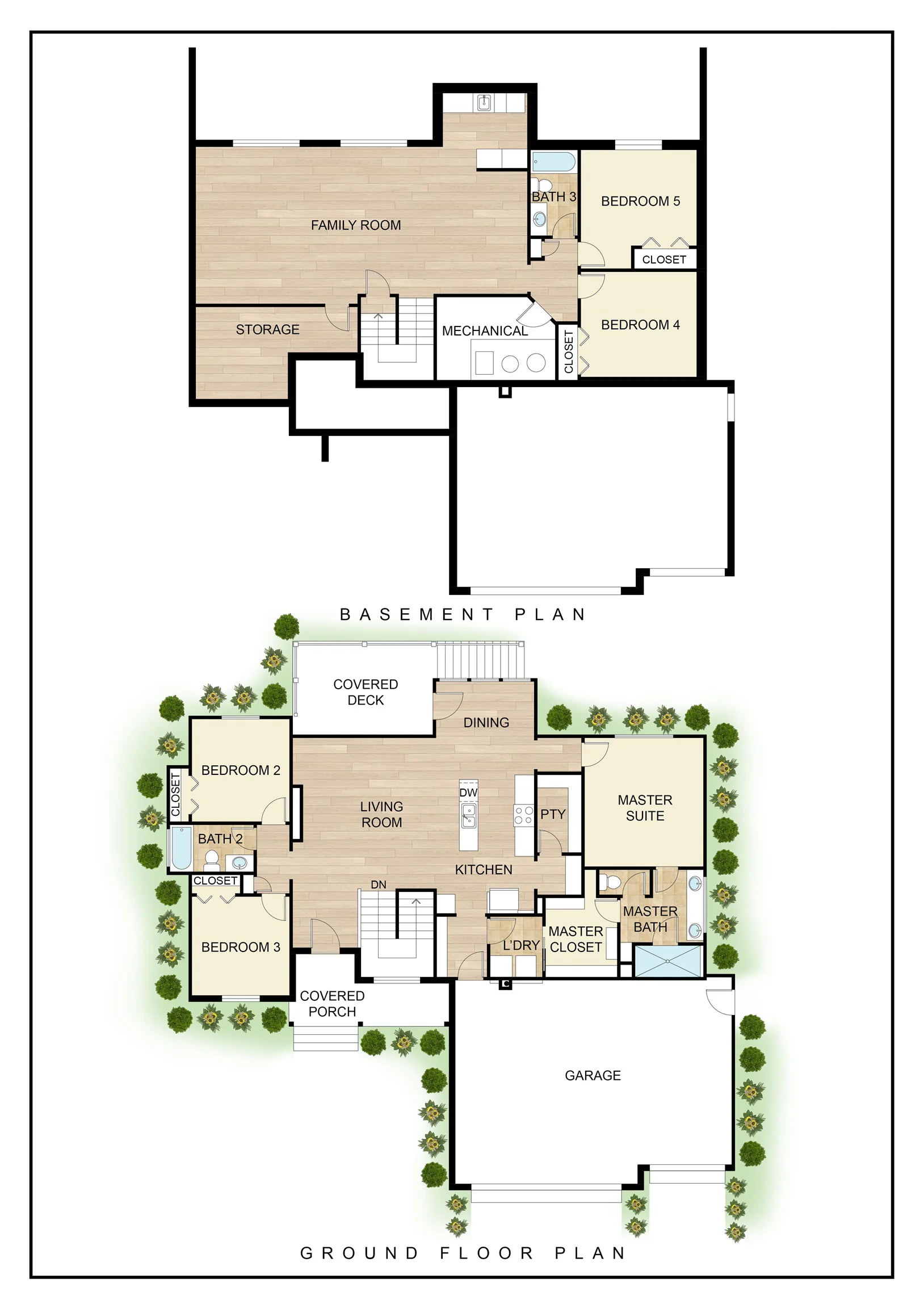
The Oakley floor plan by M&M Construction is now available for purchase. This great split 3 bedroom design with open kitchen/dining and great room with LVP flooring, quartz counter tops, decorative electric fireplace and floating with shelves and beamed ceiling. The master has large walk in shower with double shower heads, double vanities and walk in closet. There is a covered deck that overlooks the water view with an east backyard. The lower level is unfinished but could be added to this delightful home. Price includes sprinkler system, sod and landscaping.
Location
- CountyOrParish: Sedgwick
- Directions: Hillside and 45th West on 45th to Marblefalls north to Saker No to home
Building Details
- Approximate Age: Under Construction
- Architectural Style: Ranch
Amenities & Features
- Features:
- HEATING: Forced Air, Natural Gas
Miscellaneous
- Builder: M&M Construction